Sadle Foundry Overhead Crane
Sendok Foundry Overhead Crane adalah solusi pengangkat khusus yang dirancang untuk pabrik baja, pengecoran, dan industri metalurgi. Ini direkayasa untuk menangani logam cair dengan aman dan efisien, memastikan keandalan, presisi, dan peningkatan keamanan operasional dalam kondisi kerja yang ekstrem.
- Kapasitas: 5-500 ton
- Panjang rentang: 4-35 m
- Tinggi pengangkat: 3-50 m
- Tugas Kerja: A4, A5, A6, A7
- Voltage Raged: 220V ~ 690V, 50-60 Hz, 3ph AC
- Suhu lingkungan kerja: -25 derajat -+50 derajat, kelembaban relatif kurang dari atau sama dengan 85%
- Mode Kontrol Derek: Kontrol Lantai / Kontrol Remote / Ruang Kabin

Gambar & Komponen
1. Seluruh set crane
Derek overhead pengecoran sendok adalah jenis crane overhead khusus yang digunakan dalam pabrik baja dan pengecoran untuk menangani logam cair dalam sendok. Derek ini dirancang untuk menahan suhu tinggi, beban berat, dan kondisi kerja yang keras.
Komponen utama crane overhead sendok pengecoran
Seluruh set crane biasanya terdiri dari:
Bridge - Struktur utama yang membentang melintasi bengkel dan mendukung seluruh sistem derek.
Mekanisme troli & pengangkat - bergerak di sepanjang jembatan dan membawa sendok dengan logam cair. Sering termasuk:
Hoist utama (untuk mengangkat sendok)
Hoist tambahan (untuk memiringkan sendok atau operasi sekunder)
Ladle Hook atau Perangkat Pengangkat Khusus - Dirancang untuk memegang dan mengangkut sendok itu dengan aman.
Gerbong Akhir - Mendukung jembatan dan memungkinkan pergerakan derek di sepanjang rel.
Sistem Kontrol Listrik - Termasuk PLC, remote control, atau operasi kabin untuk pergerakan yang aman dan tepat.
Sistem Keselamatan-Termasuk rem darurat, perlindungan kelebihan beban, pelindung panas, dan kontrol anti-goyang.

2. Girder utama
Girder utama dari crane overhead pengecoran sendok adalah komponen struktural penting yang mendukung mekanisme pengangkatan dan memastikan stabilitas derek selama operasi. Ini memainkan peran kunci dalam menangani logam cair dengan aman di pabrik baja dan pengecoran.

3. Sistem pengangkat
Sistem pengangkatan crane overhead pengecoran sendok adalah salah satu komponen paling kritis di pabrik baja dan pengecoran, memastikan penanganan logam cair yang aman dan efisien.
1. Komponen kunci dari sistem pengangkat
(1) Mekanisme Hoist Utama
Hoist Motor: Motor berdaya tinggi menggerakkan sistem pengangkat.
Drum tali kawat: drum angin dan melepaskan tali kawat baja, mengendalikan pengangkatan dan penurunan sendok.
Reducer (gearbox): Mengurangi kecepatan motor dan meningkatkan torsi untuk pengangkatan yang halus dan tepat.
Sistem Pengereman: Termasuk rem elektromagnetik atau hidrolik untuk mencegah jatuh bebas.
Sensor beban: Pastikan pengangkatan yang aman dengan memantau berat sendok.
(2) sistem balok kait atau sendok
Hook Crane Forged: Kait tugas berat yang dirancang untuk penanganan sendok.
Rotating atau Fixed Sadle Beam: Balok pengangkat yang dirancang khusus, kadang -kadang dilengkapi dengan mekanisme miring untuk menuangkan logam cair.
(3) Hoist tambahan (opsional)
Digunakan untuk operasi tambahan seperti pemeliharaan, penanganan terak, atau penentuan posisi.
2. Prinsip Kerja
Mengangkat dan Menurunkan:
Motor memberi daya drum tali kawat untuk menaikkan atau menurunkan sendok.
Sistem pengereman mencegah pergerakan keselamatan mendadak.
Mekanisme miring (opsional):
Beberapa crane sendok memiliki mekanisme miring (elektromekanis atau hidrolik) untuk penuang yang tepat.
Keselamatan dan redundansi:
Rem ganda, sistem berhenti darurat, dan batasi sakelar mencegah kecelakaan.
Perlindungan kelebihan beban memastikan bahwa berat yang berlebihan tidak merusak sistem.


4. Gerbong Akhir
Gerbong akhir dari crane overhead pengecoran sendok adalah komponen penting yang mendukung dan memungkinkan pergerakan crane di sepanjang balok landasan pacu. Gerbong akhir ini menampung roda, motor, dan sistem penggerak yang diperlukan untuk perjalanan yang halus dan tepat di pabrik baja dan pengecoran.
Fitur Utama dari Gerbong Akhir untuk Sendok Penitipan Foundry Overhead:
Konstruksi tugas berat: Dirancang untuk menahan suhu tinggi dan beban berat.
Resistensi suhu tinggi: Sering dibuat dengan bahan atau pelapis tahan panas untuk menanggung kondisi pengecoran yang ekstrem.
Pemesinan Presisi: Memastikan gerakan yang halus dan stabil di sepanjang landasan pacu derek.
Pengaturan roda ganda: Menggunakan roda ganda atau ganda untuk mendistribusikan beban berat secara merata.
Sistem penggerak torsi tinggi: Dilengkapi dengan motor dan gearbox yang kuat untuk menangani sendok berat logam cair.
Bantalan dan roda khusus: Roda tahan panas dengan bantalan beban tinggi meningkatkan daya tahan.
Mekanisme Anti-Slip dan Keselamatan: Fitur seperti klem rel, buffer, dan sakelar batas meningkatkan keamanan.
Fungsi gerbong akhir di crane sendok:
Mendukung struktur jembatan dan memungkinkan gerakan longitudinal di sepanjang landasan pacu.
Roda yang digerakkan rumah dan pemalas, memungkinkan perjalanan yang halus dan terkontrol.
Integrasi dengan sistem listrik dan otomatisasi crane untuk kontrol yang tepat.
Berikan fondasi yang stabil untuk mekanisme penanganan sendok.
5. Mekanisme perjalanan crane
Mekanisme perjalanan crane overhead pengecoran sendok adalah komponen penting yang memungkinkan crane bergerak di sepanjang balok landasan pacu di dalam pengecoran. Mekanisme ini memastikan transportasi sendok logam cair yang mulus dan stabil, yang membutuhkan penanganan yang tepat karena suhu tinggi dan masalah keamanan.
Komponen utama dari mekanisme perjalanan
Roda crane & rel
Derek bergerak di sepanjang set rel baja yang dipasang pada balok landasan pacu.
Roda baja berkekuatan tinggi (ditempa atau dilemparkan) digunakan untuk menahan beban berat.
Biasanya terdiri dari dua roda penggerak dan dua roda pemalas per truk akhir.
Sistem drive
Terdiri dari motor listrik, peredam gigi, dan kopling yang memberi daya pada roda.
Biasanya sistem dual-drive yang disinkronkan untuk memastikan gerakan seimbang.
Kontrol Soft-Start atau VFD (Variable Frequency Drive) untuk akselerasi dan pengereman yang halus.
6. Mekanisme Traversing Trolley
Mekanisme troli troli dari crane overhead sendok pengecoran adalah komponen penting yang memastikan pergerakan troli yang halus dan tepat di sepanjang jembatan girder. Ini memainkan peran kunci dalam memposisikan sendok untuk menangani logam cair dengan aman dan efisien. Berikut gambaran komponen dan prinsip kerja utamanya:
1. Komponen mekanisme troli troli
Trolley Frame - Struktur kuat yang menampung mekanisme pengangkat dan sistem traversing.
Sistem Rel - Troli bergerak di sepanjang rel yang dipasang di gelagar jembatan.
Unit mengemudi (motor, gearbox, dan kopling) - Motor listrik menggerakkan gearbox, yang mentransmisikan torsi ke roda melalui kopling.
Roda dan rakitan roda - Biasanya, troli berjalan pada roda baja yang dipasang pada bantalan.
Sistem Pengereman - Rem elektromagnetik atau hidrolik memastikan penghentian dan penentuan posisi yang tepat.
Sistem Kontrol - Termasuk variabel frekuensi drive (VFD) atau kontrol kontaktor tradisional untuk akselerasi dan perlambatan yang lancar.
Batasi sakelar & sensor-digunakan untuk keselamatan, mencegah perjalanan berlebih dan memastikan gerakan terkontrol.
2. Prinsip kerja
Motor listrik memberi daya pada gearbox, yang mentransmisikan gerakan ke roda penggerak.
Roda penggerak bergerak di sepanjang sistem kereta api, memungkinkan troli melintasi melintasi jembatan.
Sistem pengereman memastikan pergerakan yang terkontrol dan penentuan posisi yang tepat.
Batas sakelar dan sensor penentuan posisi mencegah troli melebihi rentang gerak yang ditunjuk.
7. Roda derek
Roda derek dari crane overhead pengecoran sendok adalah komponen penting yang mendukung dan menggerakkan crane di sepanjang landasan pacu atau kereta troli. Roda ini dirancang untuk menahan beban berat, suhu tinggi, dan kondisi kerja yang keras di pabrik baja dan pengecoran.
Fitur utama roda derek untuk crane overhead sendok pengecoran:
Komposisi material:
Baja paduan kekuatan tinggi (misalnya, 42crmo, 65mn, atau Zg55) untuk menahan keausan dan deformasi.
Diperlakukan dengan panas dan dikeraskan untuk daya tahan.
Kapasitas beban & daya tahan:
Harus mendukung sendok yang sangat berat yang diisi dengan logam cair.
Dirancang untuk menangani lingkungan suhu tinggi.
Jenis roda derek:
Roda flange tunggal (digunakan saat stabilitas lateral disediakan dengan cara lain).
Roda ganda-flange (umum untuk crane overhead untuk memastikan panduan yang tepat).
Roda datar (digunakan dalam beberapa sistem kereta api di mana flensa tidak perlu).

8. Crane Hook
Hook derek untuk crane overhead pengecoran sendok adalah perangkat pengangkat khusus yang dirancang untuk menangani logam cair di pabrik baja dan pengecoran. Kait ini harus menahan suhu ekstrem, beban berat, dan kondisi kerja yang keras. Berikut adalah aspek kuncinya:
1. Desain & Struktur
Bahan: Baja paduan kekuatan tinggi atau baja tempa, seringkali diperlakukan dengan panas untuk daya tahan.
Bentuk: Biasanya tipe-C atau ramshorn kait untuk memegang sendok dengan aman.
Kapasitas muatan: berkisar dari beberapa ton hingga lebih dari 500 ton, tergantung pada ukuran crane dan sendok.
2. Fitur & Persyaratan
Resistensi panas: Harus menahan suhu tinggi di dekat logam cair (lebih dari 1000 derajat).
Faktor Keselamatan Tinggi: Dirancang dengan rasio keamanan 5: 1 atau lebih tinggi.
Ketahanan aus: permukaan yang dikeraskan atau dilapisi untuk mengurangi keausan.
Mekanisme putar: Beberapa model memungkinkan rotasi untuk meningkatkan kemampuan manuver.
Mekanisme Penguncian: Beberapa memiliki kait keselamatan atau kunci khusus untuk mencegah pelepasan yang tidak disengaja.

9. Motor
Motor crane overhead pengecoran sendok memainkan peran penting dalam mengangkat, menurunkan, dan menggerakkan sendok berat yang diisi dengan logam cair. Motor ini harus sangat tahan lama, tahan panas, dan mampu menangani kondisi operasi yang ekstrem.
Jenis motor yang digunakan dalam crane overhead sendok pengecoran
Hoist Motor - Kekuatan mekanisme pengangkatan untuk meningkatkan dan menurunkan sendok.
Trolley Motor - Menggerakkan troli di sepanjang jembatan crane.
Bridge Motor - Menggerakkan seluruh crane di sepanjang balok landasan pacu.
Fitur Utama Motor Latle Crane:
Torsi tinggi & desain tugas berat-untuk menangani logam cair dengan aman.
Resistensi panas & debu - beroperasi dalam suhu ekstrem dan lingkungan yang keras.
Kontrol Kecepatan Variabel - Memastikan penanganan sendok yang tepat.
Sistem Pengereman Gagal-Aman-Mencegah pergerakan yang tidak terkendali untuk keselamatan.
Opsi anti ledakan-digunakan di lingkungan berbahaya.


10. Sistem Alarm Suara dan Lampu & Sakelar Batas
1. Sistem alarm suara dan cahaya:
Tujuan: Sistem ini digunakan untuk mengingatkan operator dan personel tentang potensi bahaya, negara operasional, atau kondisi darurat.
Komponen:
Alarm suara: Biasanya, sirene, lonceng, atau tanduk yang memancarkan suara keras untuk menarik perhatian. Ini dapat dipicu oleh kondisi yang berbeda, seperti ketika crane mencapai batasnya, kondisi kelebihan beban, atau selama pemberhentian darurat.
Alarm Cahaya: Lampu berkedip, seringkali dalam warna yang berbeda (misalnya, merah untuk bahaya, kuning untuk hati -hati, hijau untuk operasi normal). Indikator visual ini sangat penting dalam lingkungan yang bising di mana suara saja mungkin tidak cukup.
Aplikasi: Alarm ini diaktifkan selama fase operasi kritis, seperti:
Mengangkat atau menurunkan beban di luar batas yang aman.
Situasi kelebihan beban.
Ketika crane akan mencapai batas operasionalnya (misalnya, tinggi maks atau gerakan horizontal).
Situasi shutdown darurat.
2. Sakelar Batas:
Tujuan: Sakelar batas digunakan untuk mengontrol pergerakan crane, mencegahnya bergerak melampaui batas yang telah ditentukan. Ini bertindak sebagai perlindungan untuk menghindari tabrakan, kelebihan beban, atau kerusakan pada peralatan.
Jenis:
Sakelar Batas Atas: Mencegah crane bergerak melampaui ketinggian maksimumnya, menghentikan crane pada posisi yang aman.
Sakelar Batas Bawah: Memastikan derek tidak lebih rendah dari titik operasional yang aman.
Sakelar Batas Perjalanan: Digunakan untuk menghentikan gerakan horizontal derek saat mencapai ujung treknya, menghindari kerusakan pada sistem atau beban.
Aplikasi: Batas sakelar dipasang di berbagai titik kritis di sepanjang jalur derek untuk mencegah kerusakan dan melindungi derek dan lingkungannya.

11. Perangkat Keselamatan
- Perlindungan Kelebihan:
- Mencegah crane dari mengangkat beban yang melebihi kapasitas pengenalnya, menghindari ketegangan pada crane dan kecelakaan potensial. Ini biasanya dicapai dengan menggunakan sel beban atau sensor berat.
- Batas sakelar:
- Ini digunakan untuk mencegah derek melebihi jangkauan operasi yang aman. Sakelar batas dapat dipasang untuk gerakan horizontal dan vertikal untuk menghindari perjalanan berlebihan.
- Tombol berhenti darurat:
- Memberikan metode cepat bagi operator untuk menghentikan derek jika terjadi keadaan darurat, meminimalkan potensi kerusakan dan mencegah cedera.
- Sistem blok anti-dua:
- Mencegah kait agar tidak bersentuhan dengan blok hoist, yang dapat menyebabkan kerusakan pada derek atau beban. Sistem ini memastikan selalu ada jarak yang aman antara kait dan blok.
- Lampu peringatan dan alarm crane:
- Sinyal visual dan terdengar ini memperingatkan operator crane dan personel di daerah tersebut tentang gerakan derek, kelebihan beban, atau masalah lainnya, meningkatkan keamanan.
- Perlindungan terlalu panas:
- Memantau motor crane atau sistem listrik untuk mencegah panas berlebih, yang dapat menyebabkan kerusakan atau kebakaran. Sensor digunakan untuk mendeteksi suhu yang berlebihan.
- Slip ring untuk transmisi daya:
- Memungkinkan daya ditransmisikan dengan aman ke derek dari sumber stasioner ke bagian yang bergerak, meminimalkan risiko kesalahan listrik.
- Sistem Penangkapan Musim Gugur:
- Jika terjadi jatuh, sistem penangkapan jatuh melindungi operator derek atau personel pemeliharaan dari cedera. Ini sangat penting bagi pekerja yang beroperasi pada ketinggian.
- Tanduk atau bel untuk peringatan yang terdengar:
- Untuk memperingatkan personel akan gerakan crane, terutama di lingkungan yang bising seperti pengecoran, membuat mereka sadar akan potensi bahaya.
- Sistem penghindaran tabrakan:
- Mencegah tabrakan dengan crane, hambatan, atau personel lain dengan menggunakan sensor, kamera, dan perangkat lunak keselamatan untuk memantau lingkungan derek.
- Perisai panas:
- Digunakan untuk melindungi crane dan komponen -komponennya dari suhu tinggi logam cair di sendok sendok, memastikan umur panjang dan mencegah panas berlebih.
- Sistem Pelumasan Otomatis:
- Memastikan semua bagian yang bergerak dari crane dilumasi dengan benar, mengurangi gesekan dan keausan sambil mencegah risiko kerusakan karena kurangnya pelumasan.
12. Mode Kontrol
- Mode Kontrol Manual:
- Derek dioperasikan oleh individu yang menggunakan joystick, tombol, atau panel kontrol. Operator memiliki kontrol langsung atas pergerakan crane, termasuk mengangkat, menurunkan, dan melintasi di sepanjang rel.
- Mode ini membutuhkan operator yang sangat terampil karena sifat halus menangani logam cair atau bahan berbahaya lainnya di sendok.
- Mode kontrol semi-otomatis:
- Dalam mode ini, crane melakukan tugas -tugas tertentu secara otomatis berdasarkan instruksi yang telah ditentukan (seperti memindahkan sendok dari satu lokasi ke lokasi lain), tetapi operator dapat campur tangan jika perlu.
- Misalnya, operator dapat menetapkan rute yang telah diprogram, dan derek akan mengikutinya, tetapi operator masih mengontrol pengangkatan dan pembongkaran.
- Mode Kontrol Otomatis:
- Crane sepenuhnya otomatis. Ini dapat mengikuti program preset atau rute untuk memuat dan membongkar sendok dengan intervensi minimal dari operator.
- Kontrol otomatis sangat berguna dalam mengurangi kesalahan manusia dan meningkatkan keamanan, terutama saat menangani logam cair, yang membutuhkan kontrol dan presisi yang ketat.
- Sistem ini mungkin bergantung pada sensor, kamera, dan data real-time untuk memastikan crane beroperasi secara efisien dan aman.
- Mode Keselamatan dan Darurat:
- Dalam kasus darurat, derek dapat beralih ke mode keselamatan khusus di mana ia secara otomatis menghentikan semua gerakan untuk mencegah kecelakaan atau kerusakan.
- Kontrol darurat biasanya digunakan dalam kasus seperti kegagalan daya, kelebihan crane, atau sistem keselamatan yang tidak berfungsi.
- Mode Kontrol Jarak Jauh:
- Beberapa crane pengecoran sendok canggih memiliki kemampuan remote control, memungkinkan operator untuk mengendalikan crane dari kejauhan. Mode ini dapat bermanfaat untuk operasi yang melibatkan bahan berbahaya.


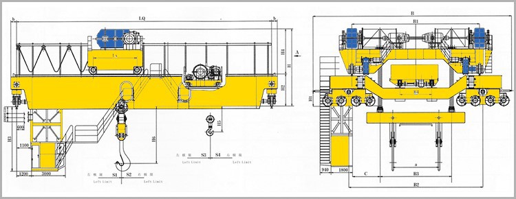
13. Sketsa

Data teknis utama

Keuntungan
- Penanganan beban yang berat: Sendok crane overhead pengecoran secara khusus dirancang untuk menangani beban berat, seringkali dalam kisaran beberapa ton. Ini membuat mereka ideal untuk memindahkan sendok logam cair, yang bisa sangat berat dan berbahaya.
- Peningkatan Keselamatan: Derek ini dilengkapi dengan fitur keselamatan seperti perlindungan kelebihan beban, penghentian darurat, dan mekanisme gagal-aman. Ini membantu mencegah kecelakaan, terutama saat menangani logam cair, yang menimbulkan risiko signifikan bagi pekerja.
- Presisi dan Kontrol: Derek ini dirancang untuk presisi tinggi dalam memposisikan sendok, memastikan penanganan yang akurat dan aman saat memindahkan logam cair dari satu titik ke titik lain di dalam pengecoran.
- Daya tahan dan ketahanan panas: Derek overhead sendok pengecoran dibangun untuk menahan lingkungan pengecoran yang keras, termasuk suhu tinggi, percikan logam cair, dan keausan dan robekan dari penggunaan terus menerus.
- Peningkatan efisiensi: Derek ini memungkinkan pergerakan sendok yang cepat dan efisien, mengurangi downtime dalam proses produksi. Mereka membantu mengoptimalkan alur kerja dengan memberikan akses cepat ke peralatan yang diperlukan dan mengurangi penanganan manual.
- Kompatibilitas Otomasi: Banyak crane overhead pengecoran sendok dapat diintegrasikan dengan sistem otomatis untuk peningkatan efisiensi operasional, seperti remote control atau penanganan beban otomatis, meminimalkan intervensi manusia.
- Mengurangi Biaya Tenaga Kerja: Dengan kemampuan untuk menangani beban yang berat dan berbahaya, derek mengurangi kebutuhan untuk tenaga kerja manual, yang bisa berbahaya dan padat karya. Ini membantu menurunkan biaya tenaga kerja dan meningkatkan keselamatan pekerja.
- Peningkatan Keselamatan Tempat Kerja: Karena operator derek dapat mengoperasikan derek dari kejauhan, itu mengurangi risiko paparan langsung terhadap kondisi berbahaya, seperti tumpahan logam panas atau cair.
- Fleksibilitas: Derek ini dapat digunakan untuk berbagai tugas, termasuk mengangkat, mengangkut, dan memposisikan sendok, yang membuat mereka sangat fleksibel untuk kebutuhan operasional yang berbeda di pengecoran.
- Pemeliharaan Rendah: Sendok Foundry Overhead Dirancang dengan komponen kuat yang membutuhkan pemeliharaan minimal, yang mengarah ke biaya perawatan yang lebih rendah dan lebih banyak waktu uptime untuk crane.
Aplikasi
- Transportasi sendok: Derek ini terutama digunakan untuk memindahkan sendok yang diisi dengan logam cair (seperti baja, aluminium, atau besi) dari tungku ke area casting. Ini melibatkan kontrol yang tepat untuk menghindari tumpahan dan memastikan keamanan saat berhadapan dengan suhu yang sangat tinggi.
- Penanganan sendok: Derek membantu dengan sendok pemosisian di bawah tungku atau tuangkan cetakan, memungkinkan logam dituangkan ke dalam cetakan secara efisien. Mereka dapat digunakan untuk sendok berputar untuk mengontrol aliran logam cair.
- Pemeliharaan sendok: Derek digunakan untuk mengangkat dan memposisikan sendok untuk pemeliharaan, pembersihan, dan perbaikan. Setelah sendok dikosongkan dari logam cair, perlu diperiksa atau diperbaharui, dan derek membuat proses ini aman dan efisien.
- Penanganan terak: Selain logam cair, crane ini juga digunakan untuk menangani terak, produk sampingan dari produksi logam. Terak dapat dilepas dan diangkut untuk didaur ulang atau dibuang, yang penting untuk menjaga kebersihan dan mencegah kontaminasi di pengecoran.
- Operasi suhu tinggi: Derek ini dirancang untuk menahan suhu tinggi dan panas intens yang dihasilkan oleh logam cair. Mereka dilengkapi dengan bahan khusus dan sistem pendingin untuk memastikan operasi yang aman di lingkungan berbahaya seperti itu.
- Otomasi dan Keselamatan: Derek sendok sendok modern sering menampilkan kontrol otomatis untuk pergerakan yang tepat dan fitur keselamatan yang ditingkatkan. Ini termasuk pembatas beban, fungsi berhenti darurat, dan sensor untuk memantau suhu dan berat beban.
Prosedur Produksi Derek
1. Desain & Teknik
Persyaratan Spesifikasi: Identifikasi kapasitas beban, rentang, tinggi pengangkat, dan lingkungan operasional (misalnya, suhu, debu, kelembaban).
Desain Struktural: Rekayasa bingkai crane, jembatan, troli, dan sistem pengangkat untuk memastikan kekuatan dan stabilitas.
Pertimbangan desain sendok: kait khusus, gendongan, atau lampiran lainnya dirancang untuk menangani sendok, mengingat suhu dan berat logam cair.
Fitur Keselamatan: Integrasi fitur keselamatan seperti perlindungan kelebihan beban, sakelar batas, penghentian darurat, dan sistem anti-tabrakan.
2. Pemilihan material
Baja dan Paduan: Bahan berkualitas tinggi dipilih untuk struktur derek, termasuk baja dengan kekuatan tarik tinggi untuk menahan beban berat.
Resistensi korosi: Bahan yang tahan terhadap suhu tinggi dan lingkungan korosif dapat dipilih, tergantung pada kondisi pengecoran.
3. Fabrikasi
Pengelasan dan Pemotongan: Bahan baku seperti balok dan pelat baja dipotong, dilas, dan dibentuk untuk membentuk bingkai derek dan komponen struktural.
Pemesinan: Pemesinan yang tepat dilakukan untuk memastikan pemasangan komponen yang tepat, seperti rel, roda, dan bantalan.
Perakitan Sistem Troli dan Hoist: Mekanisme troli dan pengangkat dirakit dengan perhatian terhadap penyeimbangan beban, efisiensi, dan keamanan.
4. Instalasi Sistem Listrik dan Kontrol
Pengkabelan: Pemasangan kabel listrik untuk motor, kontrol, lampu, dan sensor.
Panel Kontrol: Panel kontrol dipasang untuk operasi crane, dengan integrasi untuk kontrol manual atau otomatis.
Drive Motors: Motor dipasang untuk gerakan troli, hoist, dan jembatan, dengan peringkat daya yang sesuai berdasarkan kapasitas beban derek.
Sistem Keselamatan: Pengkabelan dan pemasangan fitur keselamatan, termasuk sakelar batas, rem darurat, dan sensor kelebihan beban.
5. Pengujian & Kontrol Kualitas
Pengujian Beban Statis: Derek diuji dengan beban statis untuk memastikan bahwa semua komponen menangani beban tanpa deformasi atau kegagalan.
Pengujian beban dinamis: Tes operasional dengan berbagai beban dan pergerakan untuk mengkonfirmasi fungsi crane.
Tes Keselamatan: Pengujian Sistem Keselamatan (Rem Darurat, Perlindungan Kelebihan, dll.).
Inspeksi Akhir: Inspeksi menyeluruh dari semua komponen untuk kualitas, keamanan, dan kepatuhan dengan spesifikasi desain.
6. Lukisan dan Finishing
Perawatan Permukaan: Komponen baja dibersihkan, tahan karat, dan dicat dengan pelapis yang tahan suhu tinggi.
Pelapis Pelindung: Derek dapat dilapisi dengan cat anti korosi untuk mencegah degradasi karena paparan panas tinggi, kelembaban, atau bahan kimia.
7. Instalasi & Commissioning
Instalasi: Derek dipasang di tempat, termasuk rel jembatan, koneksi listrik, dan penyesuaian akhir.
Commissioning: Crane mengalami pemeriksaan operasional akhir, kalibrasi, dan penyesuaian untuk memastikan semuanya berjalan dengan lancar sebelum penyerahan kepada klien.
8. Pelatihan Operator & Serangan
Pelatihan: Operator dilatih pada operasi crane yang aman dan efisien, termasuk prosedur darurat.
Dokumentasi: Dokumentasi lengkap disediakan, termasuk manual pengguna, jadwal pemeliharaan, dan detail garansi.
Serangan: Setelah semua tes dan pelatihan selesai, derek secara resmi diserahkan kepada pelanggan untuk penggunaan operasional.

Tampilan lokakarya
Perusahaan telah memasang platform manajemen peralatan cerdas, dan telah memasang 310 set (set) robot penanganan dan pengelasan. Setelah menyelesaikan rencana, akan ada lebih dari 500 set (set), dan tingkat jaringan peralatan akan mencapai 95%. 32 jalur pengelasan telah digunakan, 50 direncanakan untuk dipasang, dan tingkat otomatisasi seluruh lini produk telah mencapai 85%.





Tag populer: LADLE Foundry Overhead Crane, Produsen, Pemasok, Pabrik Overhead China Ladle Foundry, Pemasok, Pabrik
Sepasang
Crane overhead sendok logamAnda Mungkin Juga Menyukai
Kirim permintaan























